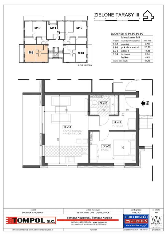
Mieszkanie M9 - Blok P1
- Numer: M9
- Balkon: Tak
- Piętro: II piętro
- Ilość pokoi: 2
- Powierzchnia: 47,16 m2
- Cena: 209000
- Wolne: Tak
- Rzut Piętra:
- Karta informacyjna:
-
Opis mieszkania:
Lokal usytuowany na drugim piętrze składający się z sypialni, salonu połączonego z aneksem kuchennym, przedpokoju i łazienki.
Do mieszkania przynależy duży balkon z widokiem na góry
Orientacja: wschód i północ
Budynek wyposażony w windę, wideodomofon, monitoring, instalcję TV-SAT
Miejsca parkingowe zlokalizowane w działce drogowej.
