508 240 831Masz pytania? Zadzwoń!
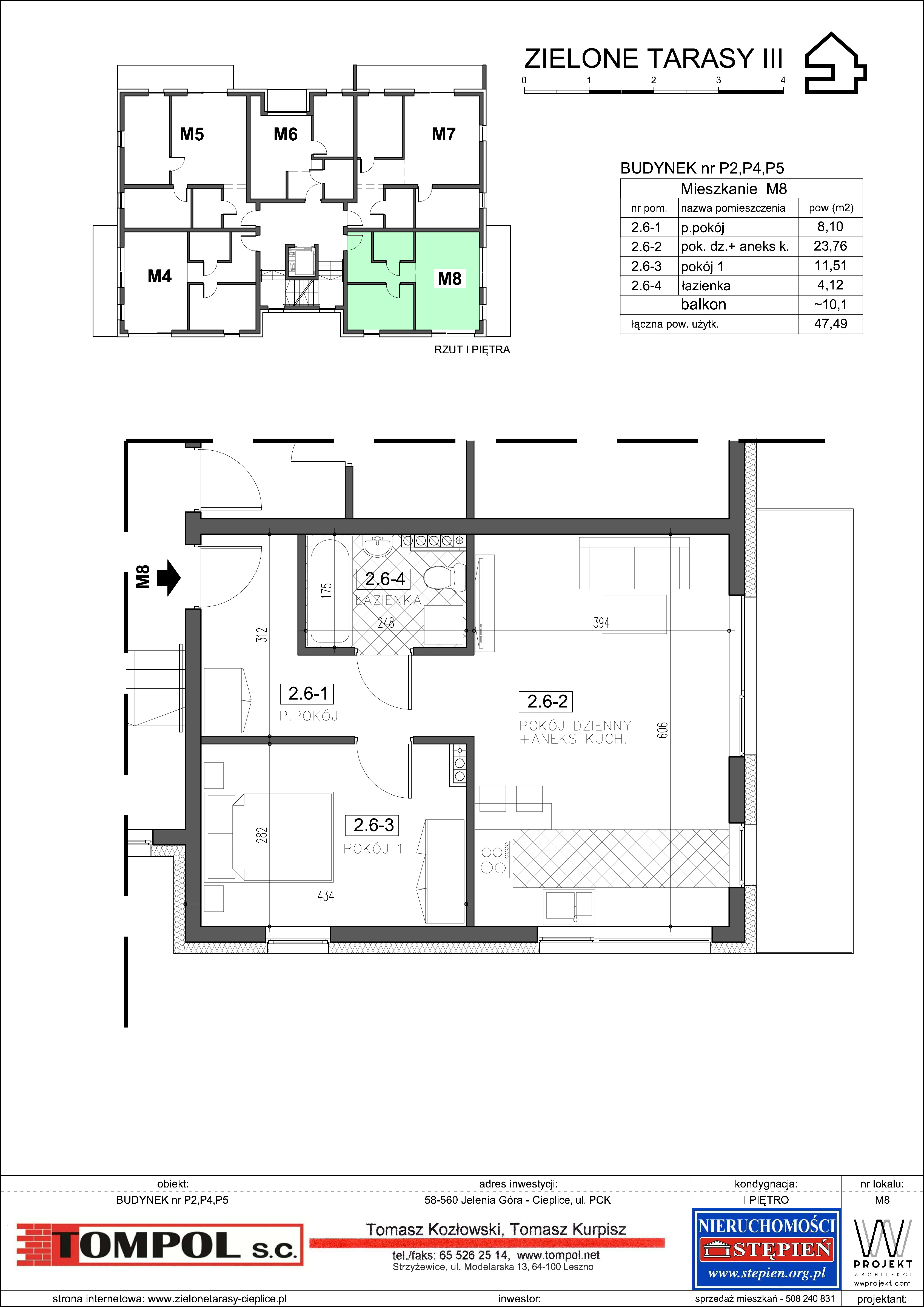
Lokal usytuowany na piętrze składający się z sypialni, salonu połączonego z aneksem kuchennym, przedpokoju i łazienki.
Do mieszkania przynależy duży balkon z widokiem na góry
Orientacja: południowy - zachód i północ
Budynek wyposażony w windę, wideodomofon, monitoring, instalację TV-SAT
Miejsca parkingowe zlokalizowane w działce drogowej.
Roksanes Żukowski lic. nr 7867tel. kom. 508 240 831email: r.zukowski@stepien.org.pl