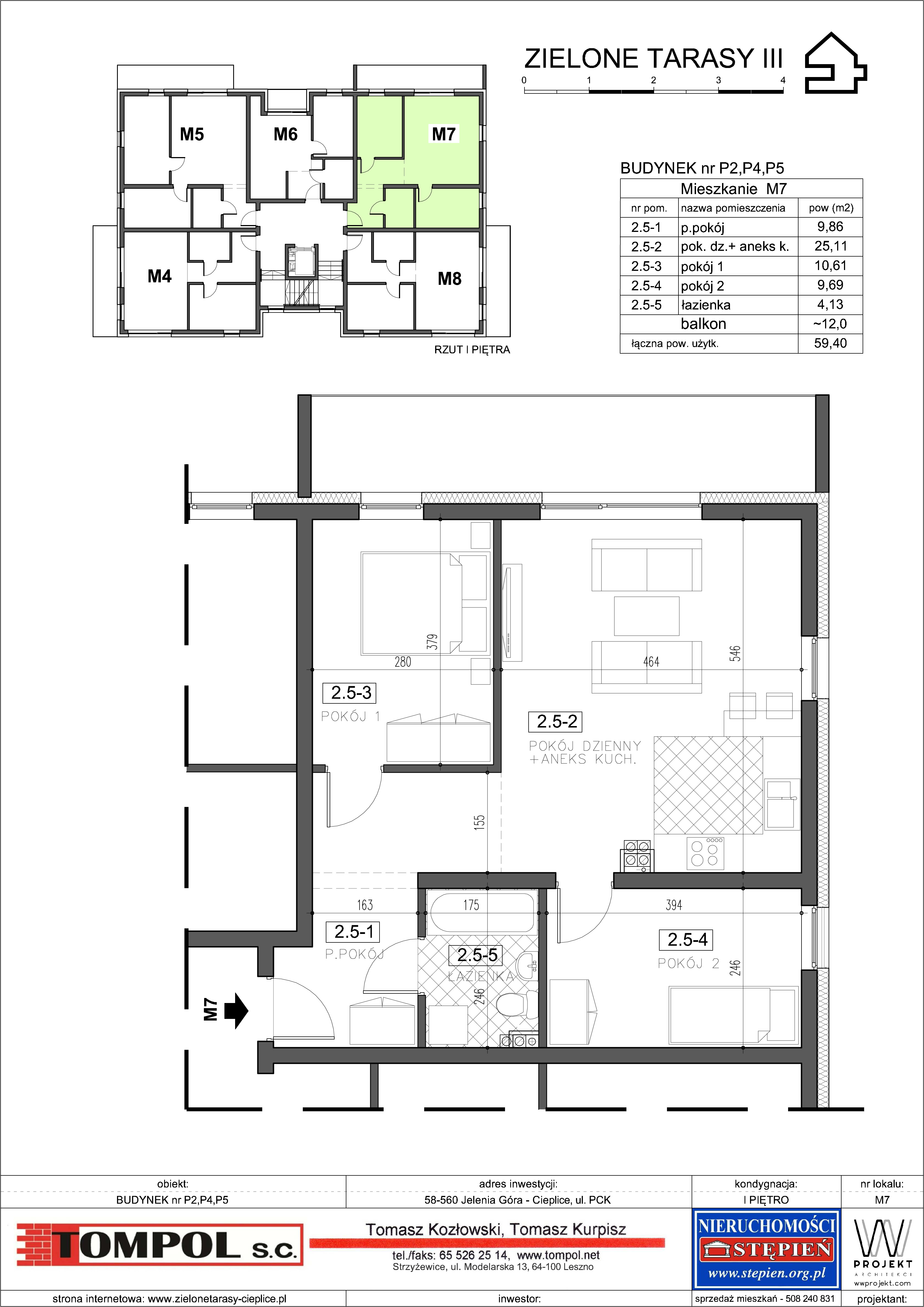
Mieszkanie M 7 - Blok P 5
- Numer: 7
- Balkon: Tak
- Piętro: I
- Ilość pokoi: 3
- Powierzchnia: 59,40
- Wolne: POD KLUCZ
-
Opis mieszkania:
OFERTA DOSTĘPNA W PÓŹNIEJSZYM TERMINIE
LOKAL BĘDZIE ODDAWANY W STANIE WYKOŃCZONYM POD KLUCZ
Lokal usytuowany na piętrze składający się z dwuch sypialni, salonu połączonego z aneksem kuchennym, przedpokoju i łazienki.
Do mieszkania przynależy duży balkon z widokiem na góry
Orientacja: południowy - zachód
Budynek wyposażony w windę, wideodomofon, monitoring, instalację TV-SAT
Miejsca parkingowe zlokalizowane w działce drogowej.
