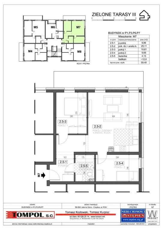
Mieszkanie M7 - Blok P1
- Numer: M7
- Balkon: Tak
- Piętro: I piętro
- Ilość pokoi: 3
- Powierzchnia: 59,40 m2
- Cena: 262000
- Wolne: Tak
- Rzut Piętra:
- Karta informacyjna:
-
Opis mieszkania:
Lokal usytuowany na pierwszym piętrze składający się z dwóch sypialni, salonu połączonego z aneksem kuchennym, przedpokoju i łazienki.
Do mieszkania przynależy duży balkon z widokiem na góry
Orientacja: południowy - zachód
Budynek wyposażony w windę, wideodomofon, monitoring, instalację TV-SAT
Miejsca parkingowe zlokalizowane w działce drogowej.
