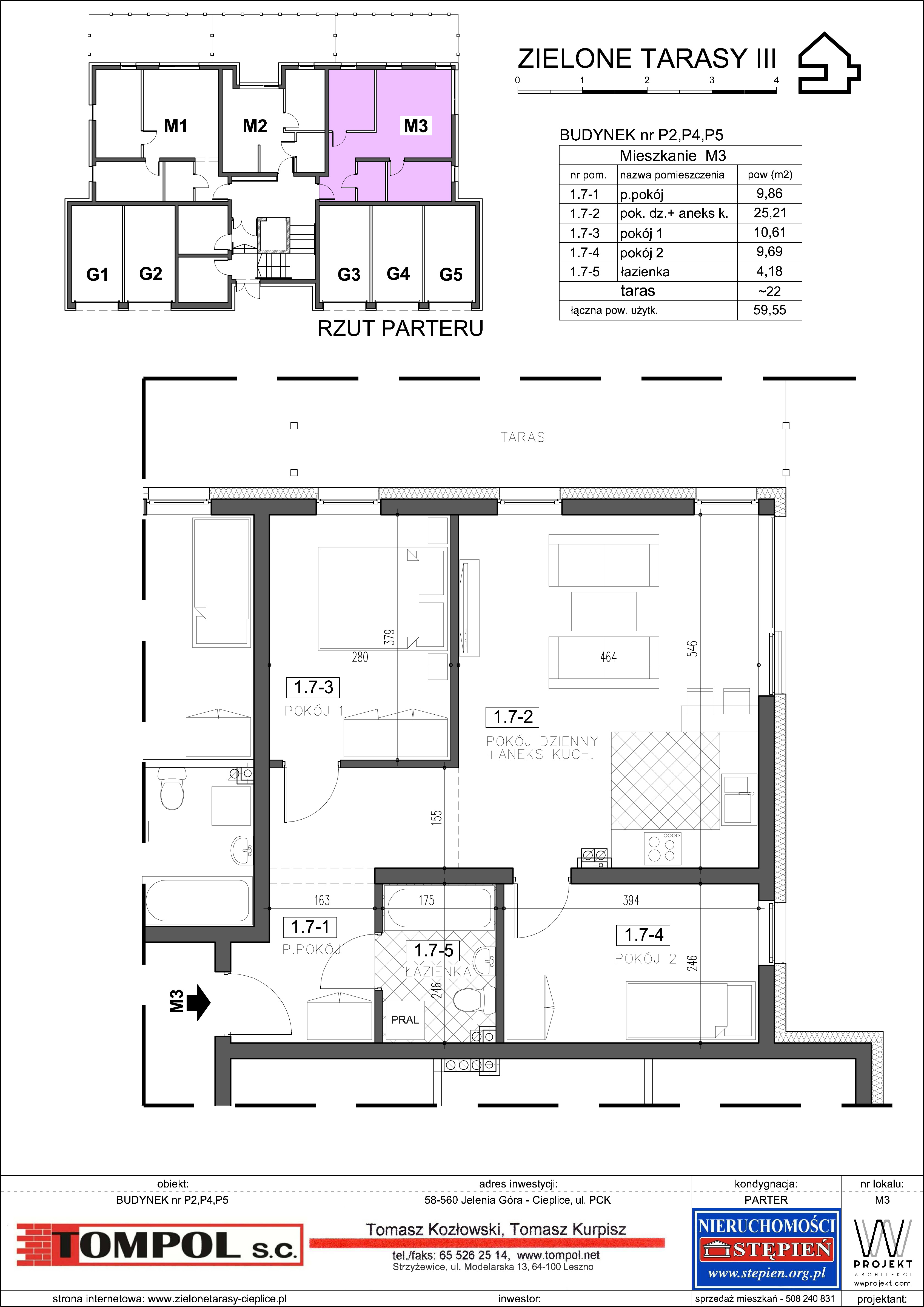
Mieszkanie M 3 - Blok P 5
- Numer: 3
- Balkon: Taras
- Piętro: Parter
- Ilość pokoi: 3
- Powierzchnia: 59,55
- Cena: 307000
- Wolne: NIE
-
Opis mieszkania:
Lokal usytuowany na parterze składający się z dwóch sypialni, salonu połączonego z aneksem kuchennym, przedpokoju i łazienki.
Do mieszkania przynależy duży taras z widokiem na góry
Orientacja: południowy - zachód
Budynek wyposażony w windę, wideodomofon, monitoring, instalację TV-SAT
Miejsca parkingowe zlokalizowane w działce drogowej.
