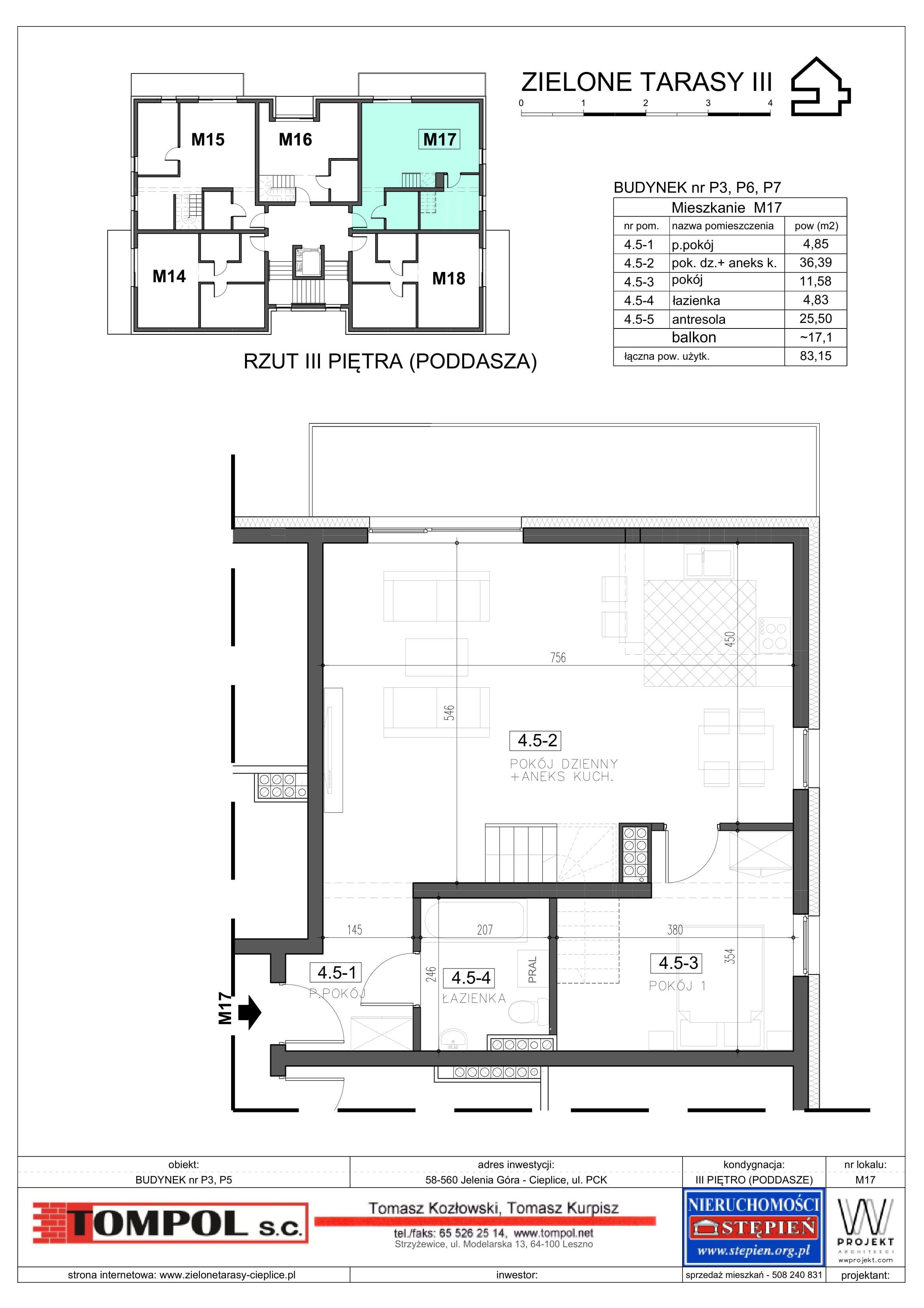
Mieszkanie M 17 - Blok P 5
- Numer: 17
- Balkon: Tak
- Piętro: III
- Ilość pokoi: 4
- Powierzchnia: 83
- Wolne: NIE
-
Opis mieszkania:
Lokal usytuowany na trzecim piętrze składający się z sypialni, salonu połączonego z aneksem kuchennym, przedpokoju i łazienki i dużej antresoli na której można zrobić dwie sypialnie plus WC.
Do mieszkania przynależy duży balkon z widokiem na góry
Orientacja: południowy zachód
Budynek wyposażony w windę, wideodomofon, monitoring, instalację TV-SAT
Miejsca parkingowe zlokalizowane w działce drogowe


