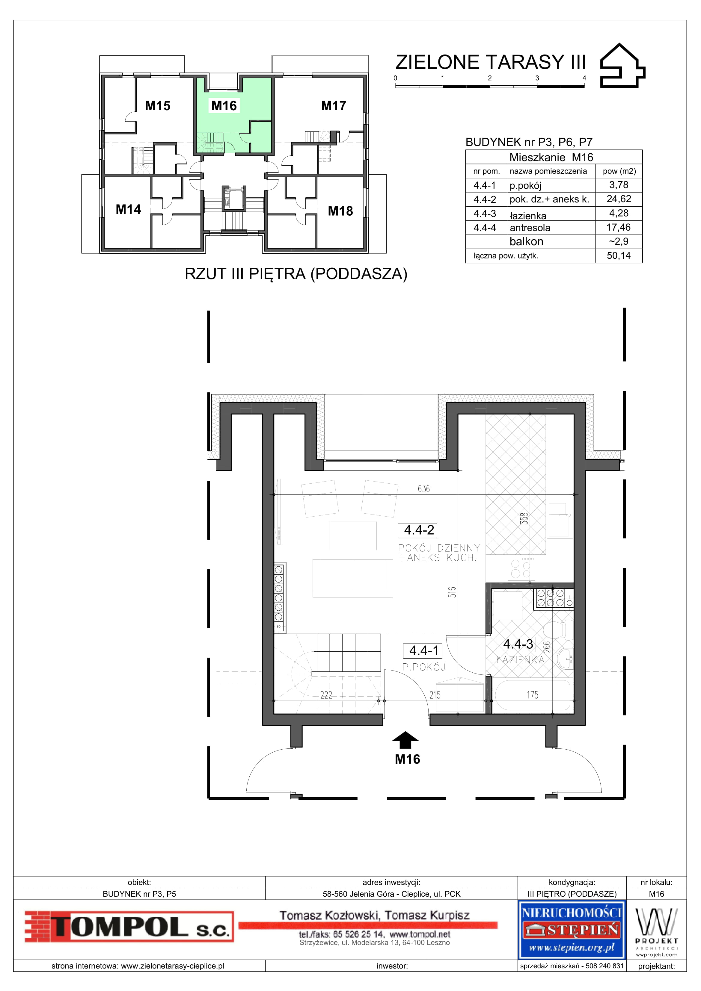
Mieszkanie M 16 - Blok P 5
- Numer: 16
- Balkon: Tak
- Piętro: III
- Ilość pokoi: 2
- Powierzchnia: 50
- Wolne: NIE
-
Opis mieszkania:
okal usytuowany na trzecim piętrze składający się z salonu połączonego z aneksem kuchennym, przedpokoju i łazienki i dużej antresoli na której można zrobić sypialnie i garderobę.
Do mieszkania przynależy balkon z widokiem na góry
Orientacja: południe
Budynek wyposażony w windę, wideodomofon, monitoring, instalację TV-SAT
Miejsca parkingowe zlokalizowane w działce drogowej.

