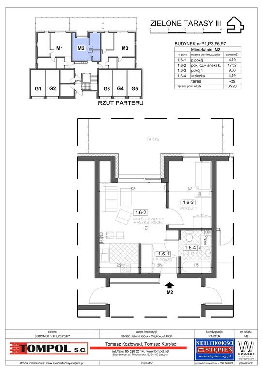
Mieszkanie M 2 - Blok P 3
- Numer: 2
- Balkon: Tak
- Piętro: Parter
- Ilość pokoi: 2
- Powierzchnia: 35,20
- Cena: 172500
- Wolne: Nie
-
Opis mieszkania:
Lokal usytuowany na parterze składający się z sypialni, salonu połączonego z aneksem kuchennym, przedpokoju i łazienki.
Do mieszkania przynależy duży taras z widokiem na góry
Orientacja: połudie
Budynek wyposażony w windę, wideodomofon, monitoring, instalację TV-SAT
Miejsca parkingowe zlokalizowane w działce drogowej.
